Chapter II Residence
Project Category
Single-Family Residential
Location
Los Angeles, CA
Status
Under Construction
Client
Bluestone Construction Corp.
Size
5,300 sq. ft
PROJECT DESCRIPTION
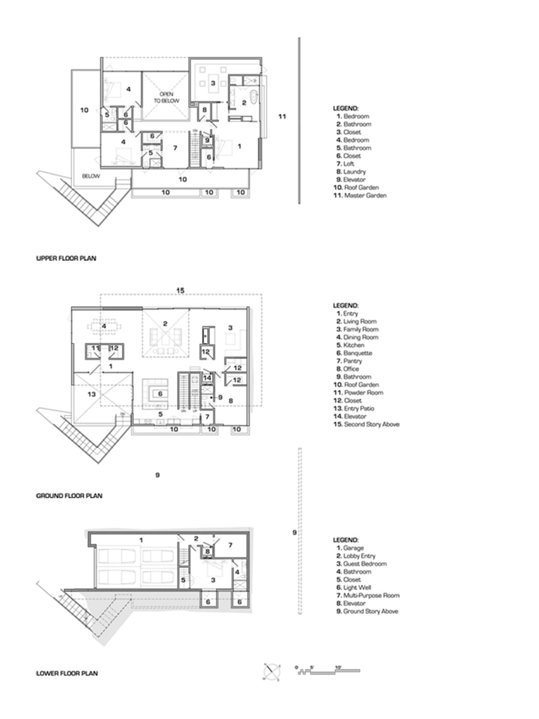
This single family residence is a response to the surrounding ecologically sensitive area. It is designed as a building that gently steps up the land as opposed to reshaping it. Challenged by a steep site and the need to lessen the home’s visual impact to hikers, the solution is in the use of natural materials and an interlocking design; as well as situating the home at the base of the property (rather than up high for views), where 75% of the property has been newly dedicated to the Santa Monica Mountains Conservancy.
While it is a three-story home, it appears as two. The terraced masses are offset from one another as well as overlapped with retaining walls. This design also minimizes earthwork and maximizes useable outdoor space. The retaining walls carry from outside to inside the house (rather than cutting away a flat pad), reinforcing the indoor/outdoor connection and better concealing the two ten-foot walls within.
The palette of materials is designed to blend into the landscape, with the shift of wood, fiber cement and board form concrete playfully offsetting one another. In this composition, two shifting masses are unique aesthetically, while the unifying element is a glazing wall that interconnects them both horizontally and vertically. This wall is oriented to theliving spaces and pool area that terraces down towards the house. Each carefully articulated building element introduces a human scale, and viewed from the hiking trails above, one only sees a landscape.
CREDITS
AUX Team: Brian Wickersham, Matthew Aulicino, Ricardo Moura, Jenny Barnish, Cody Miner, Jesus Gomez, Burcin Nalinci, Juan Lau, Sabina Lira
Consultant Team: Kazarians Structural Engineering Services, Pacific Coast Civil Engineering, Tack Landscape Architecture
AWARDS
2019 AIA San Fernando Valley Architecture Awards – Citation Award
2019 AIA San Fernando Valley Architecture Awards – People’s Choice Award







